
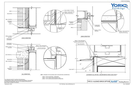
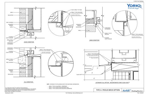
AirSill™
York's AirSill™ aluminum flashing receivers provide an alternative to traditional installation methods for flashing attachment at wall openings.

- Provides a method of attaching fenestration perimeter flashing (e.g. sill, jamb, and head) without interrupting critical fenestration perimeter seals to the air barrier.
- A two-piece system consisting of a receiver and a clip
1. Install the receiver to the backer wall
2. Install brake metal flashing into the receiver
3. Install clip into the receiver, which holds flashing in place - Allows damaged flashing to be removed without interfering with the fenestration assembly.
- Easily integrated with the air barrier assembly and is ideal for fenestration collar flashing applications.
- Eliminates the need for difficult collar flashing brake metal corner splices.

- Provides an alternative method for attaching flashing that does not interrupt critical seals to the air barrier
- Eliminates the need for fasteners in sill conditions that are more prone to water penetration
- Flashing secured to the vertical wall (vs. opening) so that fenestration can be installed before or after exterior cladding
- Creates flexibility in construction sequencing
- The installation method allows for quicker “dry-in” of the building enclosure. Interior materials can be installed simultaneously with exterior cladding
- Removable flashing installation method

- Roofing membranes
- Waterproofing membranes
- Weather resistive barriers and air barriers
- Construction sealants
- Spray polyurethane foam
- Cavity wall insulations
- York Flashing products
Installation Instructions
Details 2D and 3D
Air Sill Profiles Type A, B, D
Brick Options Type A, B, D
Perimeter Installation Sequence Type A
Rainscreen Options Type A and B
Sill Installation Sequence Type A
Storefront Elevations Type A
Tech Data
SDS
LEED
3 Part Spec
Sub Request
Submittal





